CORNA - černá
Kód: 1003-02276Související produkty
Detailní popis produktu
CORNA, to jsou moderní celolitinová krbová kamna s vyspělou technikou spalování. Nabízí se v matné černé nebo bílé smaltované litině, s rovnými nebo rohovými dvířky (prosklení vpravo/vlevo). Tato kompaktní kamna s nízkým výkonem jsou ideální pro nízkoenergetické domy a lze je dovybavit LED podbarvením s indikací provozu nebo katalyzátorem pro čisté spalování.
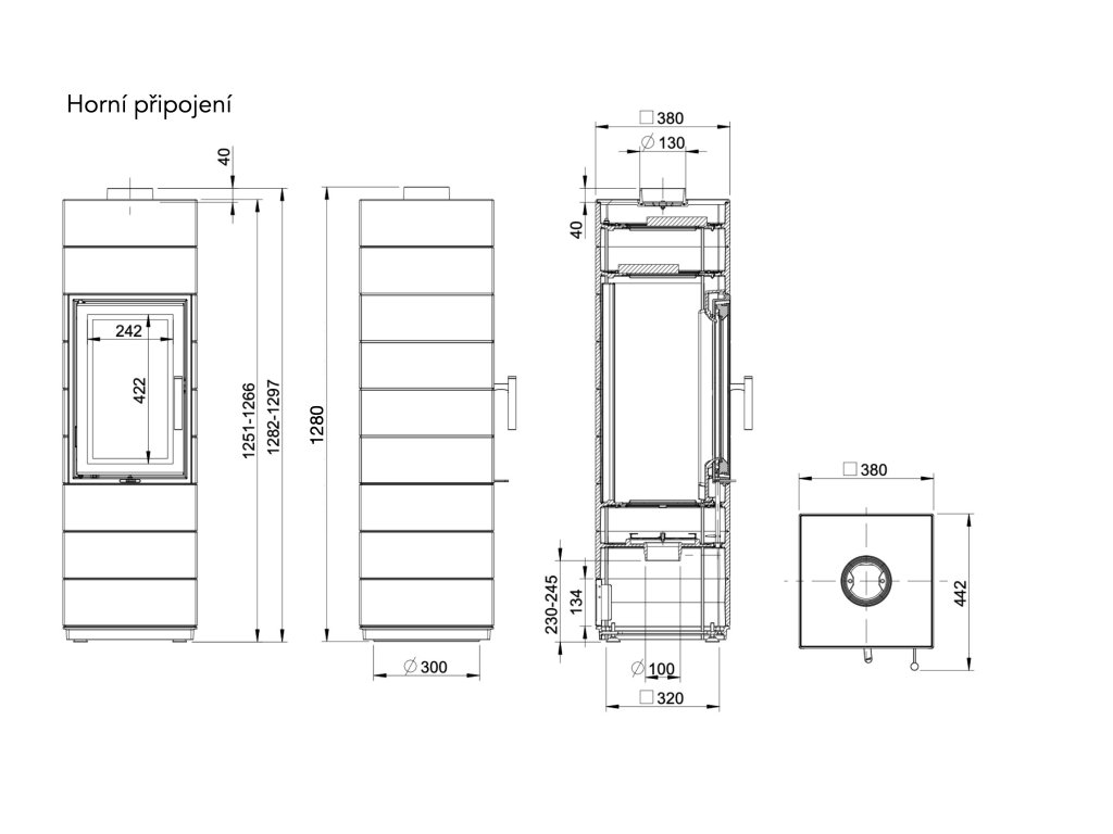
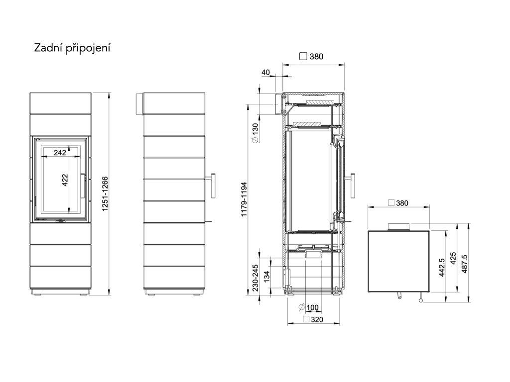
Do objednávky uveďte variantu připojení na komín (shora nebo zezadu). Hrdlo je nainstalováno rovnou z výroby a nelze to později změnit.
Doplňkové parametry
| Kategorie: | KRBOVÁ KAMNA |
|---|---|
| Hmotnost: | 250 kg |
| Typ: | Horkovzdušná |
| Výkon: | 6 kW |
| Průměr hrdla: | Ø 130 mm |
| Palivo: | Dřevo |
| Provedení: | Litina |
| Externí přívod vzduchu: | Spodní + Zadní |
Diskuze
Buďte první, kdo napíše příspěvek k této položce.
Krbová kamna Leda
Vyberte si opravdu špičková krbová kamna Leda. Ať už v tradičním nebo lehkém moderním designu, Leda sází na litinu jako jistotu spolehlivého materiálu. S kamny Leda nemůžete udělat chybu, jejich robustnost vám zaručí dlouhou životnost a velkou výhodou jsou velmi malé nároky na prostor. Navíc jsou vhodná i pro každodenní provoz s komfortní nenáročnou obsluhou. Starosti s instalací svěřte nám, postaráme se o kouřovod, nehořlavou podložku a zapojení se zátopnou zkouškou.
Litina jako základ
Od samého vzniku v roce 1875 využívá Leda litiny jako základního materiálu pro výrobu krbových kamen ve své slévárně a továrně na severu Německa. Litina jako materiál je výborná jak pro akumulaci tepla (4x vyšší hustota než šamot), tak pro následný přenos do interiéru domu. Navíc velmi dobře odolává vysokým teplotám, takže se hodí všude tam, kde se očekává větší využití.
Akumulace
Všechna krbová kamna Leda jsou celolitinová, často navíc vyložená kamnářským šamotem. I ta základní kamna jako Cornanebo Peppa váží 250kg a mají dlouhou tepelnou setrvačnost i po vyhasnutí. Některé modely se dají vybavit ještě dodatečnými litinovými nástavci, které prodlouží dobu vyzařování na 8 hodin po vyhasnutí.
Speciální kategorií jsou pro Ledu kamna akumulační. Díky spalinovým šamotovým kanálům se prodlouží cesta do komína, kamna lze pak natopit jedinou dávkou paliva a pak využívat dlouhého mírného sálavého tepla po více než 12 hodin od vyhasnutí.
Luxusní design
Nabídka značky Leda není tak široká, jako u ostatních výrobců, ale vzhled jejich kamen je velmi neotřelý. Může za to jednoduchý minimalistický design a hlavně možnost výběru smaltovaných plášťů. Pak i stylově jednoduchá kamna vypadají velmi luxusně. Na výběr je z několika barev smaltu a obzvláště tmavě zelená, červená či petrolejová upoutá na první pohled. V neposlední řadě i samotná černá litina v provedení celopláště vyzařuje jistý punc luxusu.
Výběr a připojení
Krbová kamna Leda patří mezi naprostou špičku mezi krbovými kamny. Pomůžeme vám s výběrem těch správných kamen pro váš interiér i způsob použití. Vzhledem k jejich vysoké váze není instalace a připojení vůbec snadné a tak doporučujeme u kamen Leda přenechat dopravu, instalaci a připojení na komín na nás. Když už si pořizujete špičková krbová kamna, využijte i náš špičkový servis a posaďte se v klidu do křesla. Zapálíte s námi pak první sirkou inicializační oheň a společně kamna vyzkoušíme. Více informací o možné montáži najdete ZDE.
